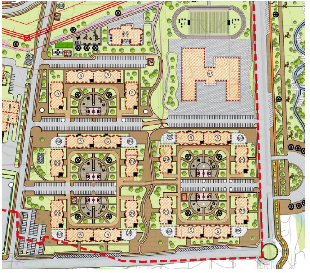
5月8日,中國二冶中標蒙古國首都烏蘭巴托市賽爾貝副中心綜合住宅項目第一標段工程。
該項目位于蒙古國首都烏蘭巴托的核心區域,總建筑面積達14.8萬平方米,規劃新建12棟9層住宅樓及8棟12層住宅樓,共計1980戶住宅單元。
作為烏蘭巴托市重點民生工程,該項目建成后,將顯著提升當地居民居住條件,對改善烏蘭巴托市人居環境具有重要推動作用。同時,進一步彰顯了中國企業的技術實力與管理水平,為深化中蒙兩國在基礎設施建設領域的合作作出積極貢獻。
上一篇: 中國二冶中標包頭·春風十里主題街區項目
下一篇: 中國二冶連中三標
所屬類別:市場開拓
首頁 |集團概況 |要聞聚焦 |項目管理 |文化建設 |視頻中心 |核心競爭力 |人力資源 |聯系我們 |企業郵箱 |管理入口
電話:0472-2126866 2126836 傳真:0472-2106550 2126259
地址:內蒙古包頭市稀土高新區黃河大街83甲 版權所有:中國二冶集團有限公司
《中華人民共和國電信與信息服務業務經營許可證》 編號:蒙ICP備2022004072號-1 工信部備案號查詢地址